Главная » Фото реализованных деревянных домов и коттеджей »
Барнхаус с банным чаном
Строительство дома в стиле «Барнхаус» под ключ от фундамента до внутренней отделки, разводки коммуникаций, установки мебели и монтажа банного чана под ключ.
Проект и планировка
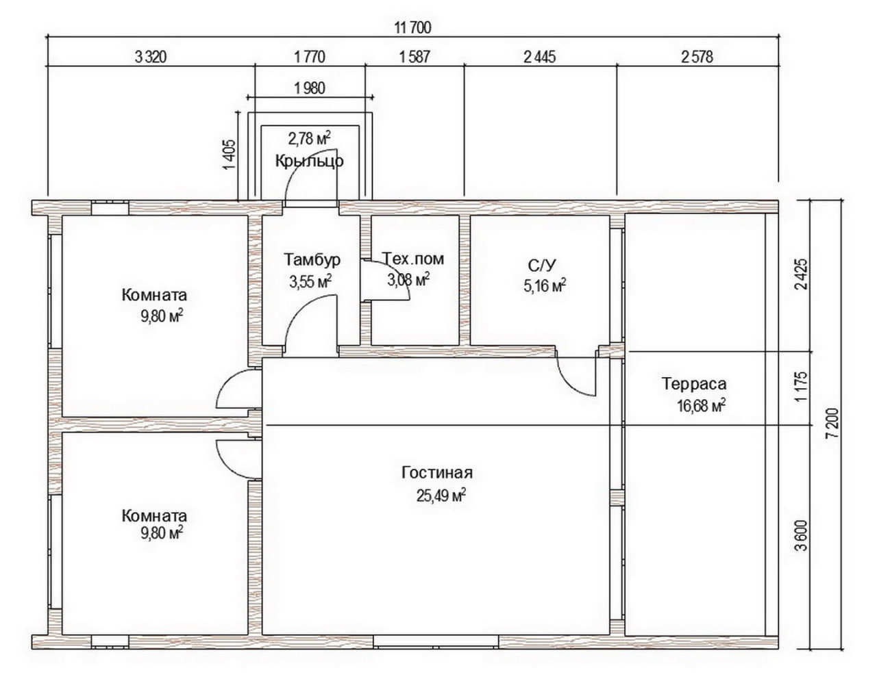
Построен по проекту №Б22 с увеличением пропорционально теплого контура до 8х13 метров, заменой технического помещения на санузел, а санузла на мастер-спальню.
Фоторепортаж строительства
Видео обзор
Остались вопросы или хотите себе такой барн?
Фоторепортаж из категорий:










































































































Для отправки комментария вам необходимо авторизоваться.