Главная » Дома из бруса »
Двухэтажный дом из бруса 9х9 площадью 173 м2
БД-175
Двухэтажный
9х9,5 м
173 м2
Комплектации проекта БД-175 под усадку, бесплатная доставка на 400 км
| Обрезной | Профиль | |||
|---|---|---|---|---|
| Наружные стены | 150x150![]() | 150x200![]() | 145x145![]() | 145x195![]() |
| Перегородки | 100x150![]() | 100x150![]() | 95x145![]() | 95x145![]() |
| Цена из бруса естественной влажности, руб | 2 152 000 | 2 660 000 | 2 479 000 | 3 044 000 |
| Цена из бруса камерной сушки, руб | - | - | 2 619 000 | 3 373 000 |
Высота 1-го этажа![]() | 2,7 метра (±50мм) в чистоте | |||
Высота 2-го этажа![]() | 2,5 метра (±50мм) в чистоте | |||
Балки пола и потолка![]() | 100х150 мм через 590 мм (под утеплитель) | |||
Стропильная система![]() | Доска 50х150 мм через 590 мм (под утеплитель) | |||
Обрешетка крыши![]() | Доска 25х150 мм | |||
Фронтоны крыши![]() | Доска 25х150 мм / имитация бруса | |||
Кровля![]() | Временная "под усадку" из рубероида | |||
Антисептирование![]() | Обработка нижнего венца и половых лаг | |||
Гидроизоляция![]() | Рубероид в два слоя по фундаменту | |||
Сборка![]() | Угловое соединение "ласточкин хвост" (теплый угол), межвенцовый утеплитель - 100% джут. Венцы между собой скрепляются нагелями. Уборка строительного мусора после завершения строительства в кучу. | |||
Дополнительные услуги на строительство
| Услуга | Описание | Цена |
|---|---|---|
| Ленточный фундамент | Глубина траншеи 0,7 м из них 0,2 м песчаная подушка, цоколь 0,5 м, ширина ленты 0,4 м, армирование - 2 стержня в 3 ряда (диаметр арматуры 12 мм), бетон марки М300 | 0 ₽ |
| Железобетонные сваи | Длина сваи 3-4 м, сечение 150х150 (200х200) мм. | 246 000 ₽ |
| Свайно-винтовой фундамент | Длина сваи - 2,5 м, диаметр ствола - 108 мм, диаметр лопасти - 300 мм, толщина лопасти - 5мм, толщина стенки ствола сваи - 5 мм, оголовок - 150х150 или 200х200 мм | 205 000 ₽ |
| Обвязочный венец | Из бруса 150х200 естественной влажности (обязателен при свайно-винтовом фундаменте). | 98 000 ₽ |
| Металлочерепица | Цена включает в себя материал (металлочерепица 0.45 с доборными элементами - коньки, подконьковой уплотнитель, торцевые планки, карнизные планки, ветро-влаго изоляционная мембрана, контррейка под вентзазор) и работу по монтажу. Цвет на выбор клиента. | 405 000 ₽ |
| Мягкая кровля | Цена включает в себя материал, комплектующие и работу по монтажу. Цвет на выбор клиента. | По запросу |
| Черновой пол | Монтаж чернового пола (доска 25х150 или 25х100 мм) | 60 000 ₽ |
| Аренда генератора | При отсутствии электричества на участке. Бензин оплачивается клиентом. | Бесплатно |
| Строительная бытовка | Бытовка 2,5х3,7 каркасная (каркас из обрезного бруска 50х100, обшитый снаружи ОСБ 9 мм). В дальнейшем может быть использована под хозблок. | 55 000 ₽ |
С проектом БД-175 часто ищут:
- 9х9
- г-образные
- двухэтажные дома
- для постоянного проживания
- до 1000000 рублей
- до 200 кв.м
- коттеджи из бруса
- нестроганный брус
- профилированный брус 150х150
- с 3 спальнями
- с балконом
- с террасой
- со вторым светом
Задать вопрос или оставить заявку на строительство / изменения
Этапы сотрудничества
Консультация
Проектирование
Расчет стоимости
Выезд на участок
Заключение договора
Монтаж фундамента
Доставка материалов
Сборка дома
Усадка (6-12 месяцев)
Отделочные работы
Описание проекта БД-175
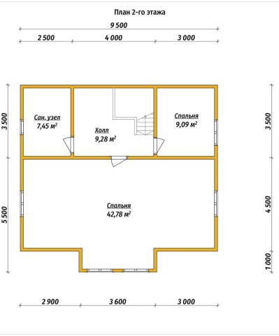
Предлагаем к строительству Двухэтажный дом из бруса 9х9 общей площадью всех помещений 173 кв.м и габаритными размерами самого сруба 9х9,5 за 2152000 рублей из обычного бруса сечением 150 на 150 мм или за 2479000 рублей из профилированного бруса сечением 140 на 140 мм. Из сухого профилированного бруса (камерной сушки) Двухэтажный дом из бруса 9х9 обойдется 2619000 рублей под ключ.
Рекомендуемый фундамент для брусового дома 9х9,5 по проекту БД-175 свайно-винтовой стоимостью 205000 рублей или Ж/Б к которым обязательно необходим обвязочный венец из пиленного бруса сечением 150х200 мм за 98000 рублей. Более дорогим и практичным является ленточный фундамент с ценой 000 рублей или монолитная плита.
Двухэтажный дом из бруса 9х9 в стандартной комплектации имеет временную кровлю из рубероида на время усадки, при желании заказчика ее можно сразу заменить на металлочерепицу за 405000 рублей. В проекте БД-175 можно использовать практически любой кровельный материал (ондулин, ондувиллу, мягкую кровлю и т.п).
Остались вопросы по проекту БД-175, хотите изменить план дома, зеркальную планировку или уменьшить / увеличить размер 9х9,5, то позвоните или напишите на info@sk-brigada.ru
Типовой вид разреза проекта БД-175 в комплектации под усадку































Для отправки комментария вам необходимо авторизоваться.