Каркасный дом 8х10 с мансардой и террасой
Комплектации проекта КД-25 под ключ:
| Летний | Сезонный | Зимний | |
| 5 690000 руб | 5 960000 руб | 6 270000 руб |
- Фундамент – винтовые сваи 108х2500 мм;
- Обвязка основания – пакет из трех строганных досок 45х190 камерной сушки;
- Черновой пол из обрезной доски 25х100 мм (антисептированная) и монтаж сетки от грызунов;
- Наружный каркас из строганной доски (зависит от выбранной комплектации) камерной сушки с шагом через 590 мм (под утеплитель);
- Лаги перекрытий и стропильная система из строганной доски 140/190х45 мм камерной сушки с шагом через 590 мм (под утеплитель);
- Утепление наружных стен, пола и потолка минераловатным утеплителем, толщина согласно выбранной комплектации;
- Перегородки из строганной доски 90/140х45 мм камерной сушки с шагом через 590 мм (под звукоизоляцию плитным утеплителем в 100 мм);
- Монтаж ветрозащитной и пароизоляционной пленки с проклейкой профессиональным скотчем;
- Вентиляционный зазор снаружи – брусок 40х40 мм камерной сушки;
- Вентиляционный зазор внутри – рейка 20х40 мм камерной сушки;
- Кровля крыши – металлочерепица/профлист 0,45 мм с доборными элементами (цвет согласовывается);
- Высота 1 этажа = 2,7 м, 2 этажа = 2,5 м;
- Внешняя и внутренняя отделка – имитации бруса, сорт (AB) толщиной 16 мм камерной сушки;
- Основание пола – ОСП 18 мм (чистовое покрытие - ламинат 8 мм, класс 33), в мокрых зонах – ГВЛВ 20 мм с гидроизоляцией (чистовое покрытие - крупноформатная плитка 400х400 мм);
- Окна – ПВХ Рехау, профиль 60 мм (2-х камерный стеклопакет в 3 стекла), москитные сетки, отливы, подоконники и обналичка;
- Входная дверь – металлическая с терморазрывом, производство Россия;
- Двери межкомнатные (согласно проекта) с фурнитурой;
- Пол на террасе/крыльце (при наличии) – строганная доска 45х140 мм камерной сушки. Подшив стен и потолка на террасах – имитация бруса камерной сушки, сорт АВ.
Дополнительные услуги
| Услуга | Описание | Цена |
|---|---|---|
| Мягкая кровля | Замена металлочерепицы (уже в базовой комплектации) на мягкую кровлю. | По запросу |
| Аренда генератора | При отсутствии электричества на участке. Бензин оплачивает заказчик. | Бесплатно |
| Строительная бытовка | Бытовка 2,5х3,7 каркасная (каркас из обрезного бруска 50х100, обшитый снаружи ОСБ 9 мм). В дальнейшем может быть использована под хозблок. | 55 000 ₽ |
| Покраска | Внутренние и внешние лакокрасочные работы, цена за работу | По запросу |
| Снегозадержатели | Установка снегоудержателей на крышу дома, цена за работу + материал | По запросу |
| Водосточная система | Пластиковая, цена за работу + материал | По запросу |
| Электрика | Разводка скрытой электрики и осветительных приборов | По запросу |
| Сантехника | Разводка труб ГВС, ХВС, канализационных труб до мокрых зон | По запросу |
| Инженерные сети | Монтаж скважины и септика | По запросу |
Задать вопрос или оставить заявку на строительство / изменения
Проект соответствует категориям домов:
- 2 этажа
- 8 на 10
- большие
- для зимнего проживания
- для круглогодичного проживания
- до 150 кв м
- до 1500000 рублей
- коттеджи
- на ленточном фундаменте
- под отделку
- проекты с котельной
- с двускатной крышей
- с мансардой
- с террасой (верандой)
- с четырьмя спальнями
- теплый
- элитные каркасники
Этапы сотрудничества
Консультация
Проектирование
Расчет стоимости
Выезд на участок
Заключение договора
Монтаж фундамента
Доставка материалов
Сборка дома
Отделочные работы
Передача ключей
Описание проекта КД-25
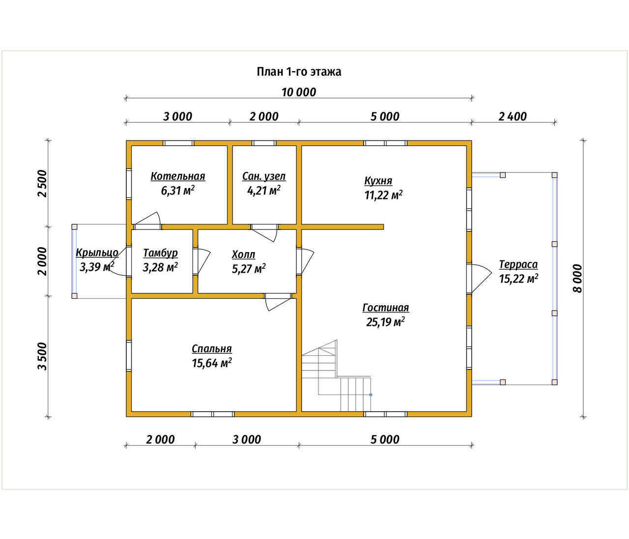
Предлагаем построить Каркасный дом 8х10 с мансардой и террасой площадью 162 кв.м и габаритными размерами самого каркаса 8х10 за 5690000 рублей с толщиной наружной стены 100 мм, за 5960000 рублей вы получите стену 150 мм, а стена с утеплением в 200 мм обойдется в 6270000 рублей.
Фундамент для дома по проекту КД-25 свайно-винтовой, цена которого уже включена или более долговечные железобетонные сваи (немного дороже). Более дорогой и основательный является ленточный фундамент или монолитная плита. Уже в базовой комплектации проект КД-25 имеет кровлю из металлочерепицы, цвет которой выбирает заказчик.
Остались вопросы по каркасному дому КД-25, хотите изменить план дома, сделать зеркальную планировку или уменьшить / увеличить размер 8х10, то позвоните или напишите на info@sk-brigada.ru
















Для отправки комментария вам необходимо авторизоваться.